Grundschule Gartnisch
Leistung
Neubau
Ort
Halle (Westf.)
Fotograf
Ralf Buscher
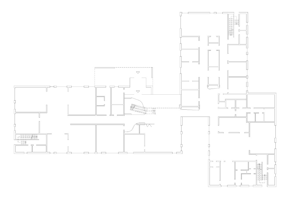
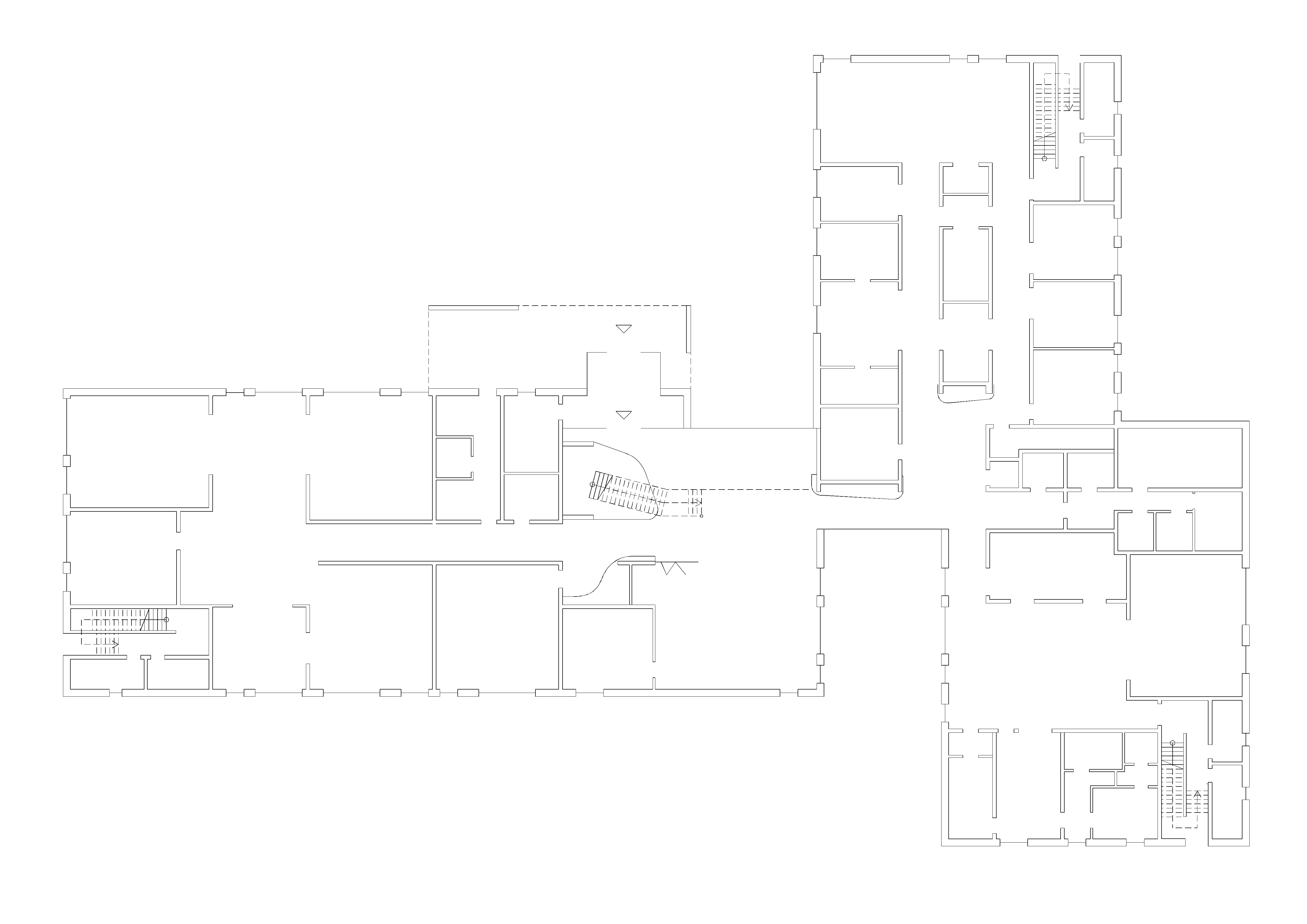
Die dreizügige Grundschule mit Ganztagesbereich, Forum und Mensa ist als 2-geschossiger Baukörper mit Flachdach geplant.
Die geplante Gebäudegeometrie wird hierbei zum einen vom pädagogischen Konzept (Clusterbildung) und der städtebaulichen Situation (Raumkante Straße und Raumkante Schulhof) geprägt.
Aufgrund des gesetzten Anspruches auf Nachhaltigkeit wird die Schule als Hybridkonstruktion geplant, wobei die Materialien entsprechend ihrer jeweiligen Vorzüge in Hinblick auf Tragfähigkeit, Schallschutz, Brandschutz und Wärmeschutz gezielt eingesetzt werden. Die Fassade ist als Holzrahmenbaufassade mit einer äußeren Sichtschalung aus Lärche und großzügigen Verglasungen vorgesehen.
Die Erschließung des Gebäudes erfolgt über die Bredenstraße und den vorgelagerten Schulhof. Die Anlieferung der Mensa erfolgt über den Gartnischen Weg.
Die Klassen und Ganztagesräume erhalten dezentrale Lüftungsgeräte mit Wärmerückgewinnung. Das energetische Konzept sieht ein Null- bzw. Plusenergiehaus vor. Zu dem wird ein KFW-55EE Standard erreicht.
Das Raumprogramm unter Vorgaben des pädagogischen Konzeptes wurde im Entwurf wie folgt verortet:
Ergeschoss: Forum mit Musikraum, Bücherei, WC-Anlage, Hausmeister, Klassencluster 3, Versorgungsbereich mit Mehrzweckraum, Küche, Schulküche und Technikbereich
Obergeschoss: Klassencluster 1, 2 und 4, Ganztagsbereich